山東風途物聯網科技有限公司
聯系人:薛經理
聯系電話:15689257565
QQ:1379335561
公司地址:山東省濰坊市高新區光電路155號(hao)光電產業加速器(一(yi)期)
PRODUCT
聯系人:薛經理
聯系電話:15689257565
QQ:1379335561
公司地址:山東省濰坊市高新區光電路155號(hao)光電產業加速器(一(yi)期)

產品型號:FT-LFZ1
產(chan)品(pin)價格:5000元
產品品牌:風途
一、裂縫監測系統產品簡介
裂縫監(jian)測(ce)(ce)系統(tong)(tong)又稱一體化裂縫監(jian)測(ce)(ce)儀,裂縫監(jian)測(ce)(ce)系統(tong)(tong)用于環(huan)境惡劣的(de)條件下,安裝在橋梁、隧道(dao)、邊坡等結(jie)(jie)構(gou)物的(de)關鍵位(wei)(wei)置(zhi),實現(xian)長(chang)期的(de)裂縫位(wei)(wei)移(yi)監(jian)測(ce)(ce),確保(bao)結(jie)(jie)構(gou)處于安全狀態(tai)。本產品廣泛應用于地質(zhi)災害、巖土(tu)工(gong)程、建筑工(gong)程、交通、水利、市政等多個監(jian)測(ce)(ce)領域,特別適用于地表裂縫、卸荷(he)裂隙、房屋或結(jie)(jie)構(gou)裂縫等相對位(wei)(wei)移(yi)的(de)精(jing)確監(jian)測(ce)(ce)。
在(zai)地質災害監測中,能(neng)夠(gou)實時捕(bu)捉地表裂縫的微小變(bian)化,為滑坡、崩(beng)塌等災害預警提供(gong)關鍵數據;在(zai)巖土工(gong)程中,可有(you)效監測卸荷裂隙(xi)的發(fa)展趨(qu)勢(shi),確保工(gong)程安全;
在建筑工程領域,能夠精準檢測房屋或結(jie)構裂縫(feng)的位移情況,為建筑物(wu)的健(jian)康診斷和維護提供(gong)科學依據(ju);
在交通、水利和市政工(gong)程中,同樣(yang)能夠發揮重(zhong)要作用,確保(bao)基礎(chu)設施的長期穩定運行。
通過高精度的監測(ce)數據(ju),幫助用戶及時采取應對措施,降(jiang)低風險,保障工(gong)程和人員安全(quan)。
二、裂縫監測系統(tong)技術參數
| 量程 | 0-1000mm |
| 精度 | ±0.02%F.S |
| 響應時間 | 1s |
| 外殼材質 | ABS |
| 供電電壓 | 12-24VDC(0.4W@12V) |
| 通訊方式 | modbus-485 |
| 太陽能板功率 | 8W |
| 太陽能板標準工作電壓 | DC5V |
| 內置鋰電池容量 | 5000mAh |
| 支架材質 | 不銹鋼 |
| 采集器 | 帶3年流量 |
| 數據傳輸 | 標配每10分鐘傳輸一次,支持定制 |
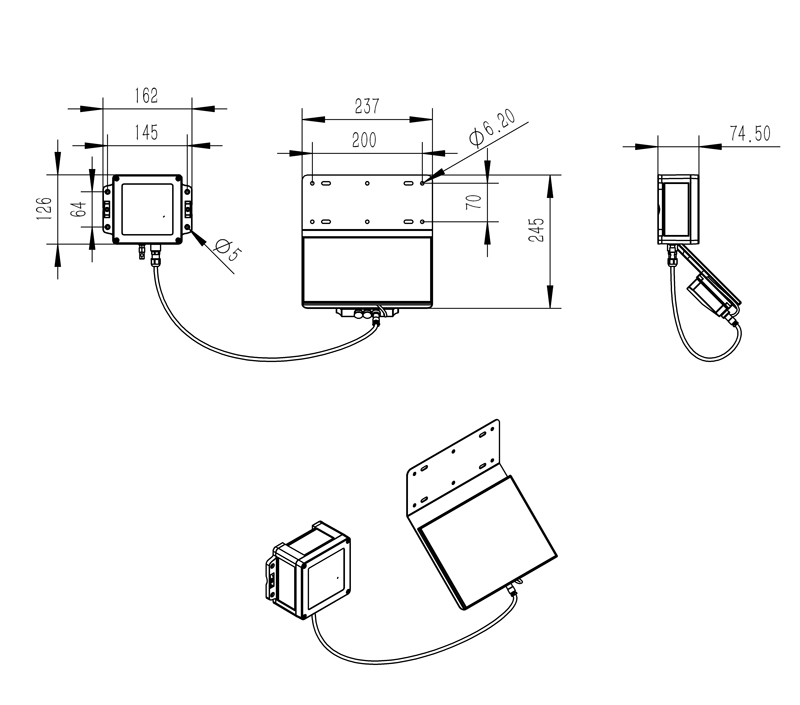
三(san)、裂縫(feng)監測系統產品尺寸圖
